Rif: Pavona
ALBANO LAZIALE
ROMA
L'immobile si trova in una zona centrale, vicina alla stazione ferroviaria, a servizi commerciali, scuole e altre comodità.
Situato al secondo piano senza ascensore di una piccola palazzina senza condominio.
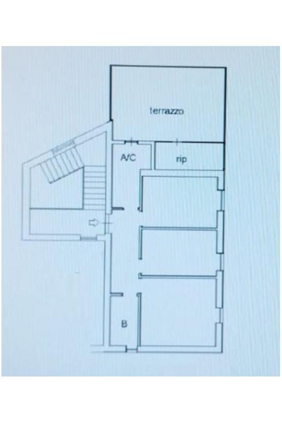
Internamente composta da:
Ingresso,
Soggiorno con camino,
Cucinotto,
2 camere,
Bagno,
Grande terrazzo di circa 30 mq con ampio ripostiglio.
L'agenzia Metroquadro nasce da un progetto di tre professionisti del settore con esperienza ventennale, iscritti regolarmente all'albo degli agenti in affari e mediazioni. La nostra esperienza al servizio del cliente ci permette di avvalorare il nostro Progetto Casa, dove potrete trovare tutte le informazioni necessarie per scoprire quali siano le opportunità che il mercato immobiliare e finanziario offre.
L'agenzia si avvale di un servizio di consulenza finanziaria gratuita attraverso società di mediazione creditizia, convenzionata con i più importanti istituti bancari italiani.
Ci troviamo a Marino, località Frattocchie, all'interno del centro commerciale "La Nave". Per raggiungerci potete percorrere la via Nettunense al km 0.600 e svoltare per via Giorgio Amendola, fino ad arrivare alla piazza Sandro Pertini, dove troverete un ampio parcheggio.
Completamente da ristrutturare.
Situato al secondo piano senza ascensore di una piccola palazzina senza condominio.
Internamente composta da:
Ingresso,
Soggiorno con camino,
Cucinotto,
2 camere,
Bagno,
Grande terrazzo di circa 30 mq con ampio ripostiglio.
L'agenzia Metroquadro nasce da un progetto di tre professionisti del settore con esperienza ventennale, iscritti regolarmente all'albo degli agenti in affari e mediazioni. La nostra esperienza al servizio del cliente ci permette di avvalorare il nostro Progetto Casa, dove potrete trovare tutte le informazioni necessarie per scoprire quali siano le opportunità che il mercato immobiliare e finanziario offre.
L'agenzia si avvale di un servizio di consulenza finanziaria gratuita attraverso società di mediazione creditizia, convenzionata con i più importanti istituti bancari italiani.
Ci troviamo a Marino, località Frattocchie, all'interno del centro commerciale "La Nave". Per raggiungerci potete percorrere la via Nettunense al km 0.600 e svoltare per via Giorgio Amendola, fino ad arrivare alla piazza Sandro Pertini, dove troverete un ampio parcheggio.
Completamente da ristrutturare.
Consistenze
| Descrizione | Superficie | Sup. comm. |
|---|---|---|
| Principali | ||
| Immobile - 2° piano | 70 Mq | 70 Mqc |
| Totale | 70 Mqc | |






